Caldes d'Estrac (Maresme)
PRESSUPOST(sense iva)
216.337 €
SUPERFÍCIE CONSTRUÏDA
308,00 m2
PROMOTOR
Diputació de Barcelona
DATA DEL PROJECTE
1997
DATA D’EXECUCIÓ
1999
COL·LABORADORS
Xavier Bonet, arquitecte
Manuel Arguijo (estructures)
Lluis Duart (instal.lacions)
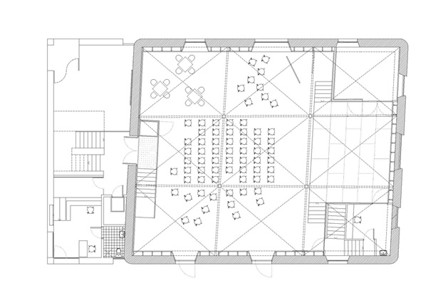
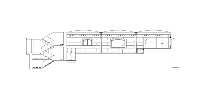
El projecte pretén recuperar l'idea original de la Sala com a espai unitari, deixant lliure visualment tot el sostre que formen les nou voltes, les quals es recolzen als quatre pilars de fosa i les parets perimetrals.
A la planta pis, i amb un possible funcionament independent de l'edifici restant, se situa la Sala Cultural, que permet la realització de diferents activitats a l'hora. Als costats de l'escenari hi ha un camerino-vestidor per a representacions teatrals i la zona d'instal.lacions. Es preveu adaptar l'escala actual i un elevador.
A l'accés en planta primera i amb connexió directa al carrer, se situa la Polícia Municipal i control d'entrada en un espai tancat, reformant el bany existent com a servei adaptat, i construïnt una rampa d'accés, eliminant barreres arquitectòniques.
