Logroño
PRESSUPOST(sense iva)
1.629.996 €
SUPERFÍCIE CONSTRUÏDA
2.075 m2
PROMOTOR
Ajuntament de Logroño
DATA DEL PROJECTE
1999
DATA D’EXECUCIÓ
2000
COL·LABORADORS
Xavier Bonet i Dolors Cervantes
Manuel Arguijo (estructures)
Lluis Duart (instal.lacions)
PREMIS
1er Premi concurs d'idees 1998
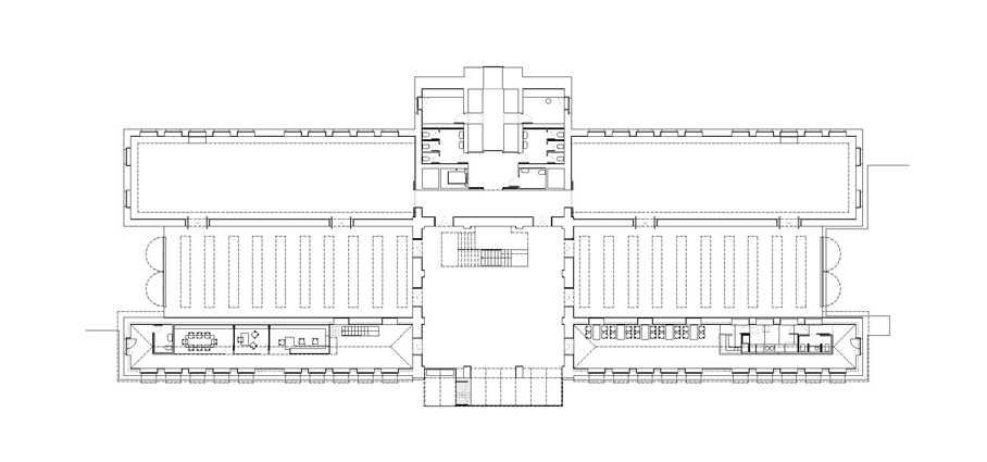
L'antic escorxador de Logroño, es un edifici singular que s'exten sobre un emplaçament amb el privilegi de ser un balcó sobre el riu Ebre amb la silueta del casc antic com a teló de fons. El projecte incentiva l'accés peatonal des de el pont de pedra i el recorregut paral•lel al riu i a l'edifici en planta baixa. L'edifici s'obre cap a l'exterior, cap al riu i la ciutat. L'edifici s'ordena centralment al voltant d'una torre a la que se l'hi adossen, simètricament respecte a l'eix d'entrada, quatre naus d'una i dues plantes. El tractament exterior de l'edifici es concentra gairebé exclusivament sobre la façana del riu, que és tractada amb elements de llenguatge clàssic industrial. La proposta de l'actuació es concentra en la recuperació de l'edifici al seu estat original, de la seva estructura morfològica i de les seves qualitats espaials, i es concentra en: - Habilitar l'accés principal, a nivell del passeig peatonal paral•lel al riu, a través d'una galeria-mirador. - Reutilització de l'espai central de la torre com a espai fonamental del museu en quant a distribuidor i gran hall de confluència de tot l'edifici. - Situar l'exposició pública en la planta baixa, augmentant la superfície disponible mitjançant l'ocupació dels patis interiors. L'àrea d'administració, biblioteca i la cafeteria se situen a les naus més properes al riu. - Conservar l'accés des del carrer de l'Ebre amb la seva configuració actual i ubicar en la planta primera la sala de conferències, aules, tallers i instal•lacions; d'aquesta forma l'accés a aquests serveis es pot fer independent de l'accés al públic.
