Folgueroles (Osona)
PRESSUPOST(sense iva)
282.093,48 €
SUPERFÍCIE CONSTRUÏDA
458,00 m2
PROMOTOR
OTC – Diputació Barcelona
DATA DEL PROJECTE
2001
COL·LABORADORS
Eskubi Turró arqtes (estructures)
Lluis Duart (instal.lacions)
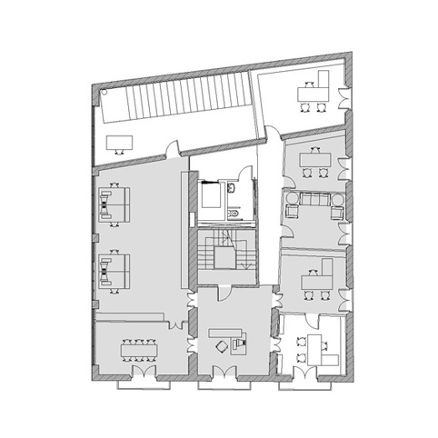
Els espais que ocupen els diferents serveis de l'Ajuntament, concentrats actualment en la planta primera, estan col•lapsats per tenir que compartir despatxos amb diferents activitats, la qual cosa fa necessari una nova redistribució, assignant-les més superfície de la que ara disposen i ocupar la totalitat de l'edifici. A la planta baixa es col•loca la sala de plens convertible en sala multi-us i una nova zona de serveis i centralització de les instal•lacions amb dos serveis sanitaris, un adaptat al codi d'accessibilitat, uns vestidors, la sala de calderes i un petit magatzem. A la planta primera, i amb un possible funcionament independent de la resta de l'edifici, se situa les dependències municipals de l'Ajuntament, amb l'ampliació de l'arxiu de l'administració i un nou despatx. L'actual servei de planta es reconvertirà en despatx d'alcaldia. A la planta segona, i també amb un possible funcionament independent del serveis municipals de l'Ajuntament, se situen els locals per a Entitats, amb l'ampliació de l'arxiu municipal. L'àmbit públic se situa en els serveis sanitaris i sala de plens. L'administratiu es localitza en els despatxos en planta primera i tècnics en planta pis. Els locals socials i l'arxiu, se situen a la planta segona. Les plantes es comuniquen per una escala i un ascensor situats en el vestíbul de l'edifici, permeten un funcionament independent. Se substitueix i es reforcen, segons els casos, els forjats per assolir els esforços a que es sotmetran segons les normatives vigents. S'han projectat materials resistents i de qualitat per augmentar la durabilitat i facilitat de manteniment.
