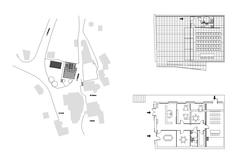
Tavèrnoles (Osona)
PRESSUPOST(sense iva)
178.624,77 €
SUPERFÍCIE CONSTRUÏDA
262,00 m2
PROMOTOR
OTC – Diputació Barcelona
DATA DEL PROJECTE
2002
COL·LABORADORS
Eskubi Turró arqtes (estructures)
Lluis Duart (instal.lacions)
El projecte respon al programa de necessitats suggerit per l'Ajuntament Tavèrnoles. Els espais que ocupen els diferents serveis de l'Ajuntament, concentrats actualment en la planta primera, estan col•lapsats per tenir que compartir despatxos amb diferents activitats, la qual cosa fa necessari una nova redistribució, assignant-les més superfície de la que ara disposen i ocupar la totalitat de l'edifici. A la planta baixa es col•loca les dependencies municipals, el local pel consorci de Parcs Naturals i la sala de plens, tots aquest espais disposaran d'accés independent des de l'exterior. A la planta primera es col•locarà una nova sala polivalent amb la possibilitat de ser compartida per l'ajuntament i els dos consorcis. A la part en contacte amb la terrassa exterior i accés de la sala a nivell d'aquesta planta, es col•locaran tres portes basculants permeten que es pugui incorporar aquest espai exterior a la pròpia sala. Disposarà de lavabos (un d'ells adaptat), magatzem i instal•lació de climatització.
