Corbera de Llobregat
(Baix Llobregat)
PRESSUPOST(sense iva)
2.600.248,77 €
SUPERFÍCIE CONSTRUÏDA
1.542,60 m2(edif.) + 999,33 m2(urb.)
PROMOTOR
Diputació Barcelona
Ajuntament de Corbera de Llobregat
DATA DEL PROJECTE
2006
DATA D’EXECUCIÓ
2010
COL·LABORADORS
Manuel Arguijo (estructures)
Lluis Duart (instal.lacions)
Mireia Estrada, estudiant arq.
PREMIS
.1er Premi concurs d'idees 2005
.Finalista Premis Arq. Plus 2011
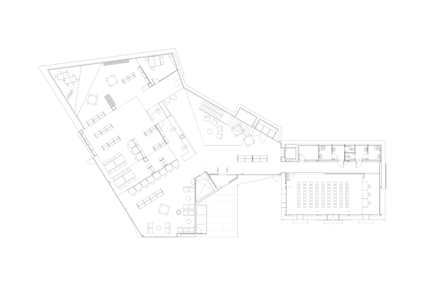
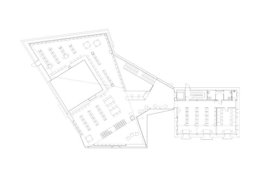
El solar se situa al costat de la masia de Can Baró, de geometria complexa i irregular presenta un considerable desnivell entre el carrer Sant Antoni i la cota d'accés de Can Baró. El lloc del projecte conserva l'encant d'aquelles zones on la diversitat i la manca d'unitat fa necessària una resposta contundent, lògica i meditada que li retorni a la masia de Can Baró la identitat que li pertoca. Una part de la coberta del nou edifici annex a Can Baró es constitueix en plaça pública a nivell del carrer Sant Antoni, per a realitzar-hi espectacles públics i diversos usos de lleure. La profunditat del nou edifici i els murs de contenció a conseqüència de la topografia del lloc dóna peu que la coberta porti la llum a l'interior mitjançant el seu traçat esglaonat o sinuós, de manera que l'interior rep diferents qualitats de llum del sostre, dels dobles espais i de les façanes. Aquest gest de la coberta no respon només a requeriments lumínics, el pla de la coberta puja en pendent per guanyar alçada als espais interiors i des del la plaça es converteix en mirador amb la ciutat com a teló de fons. I descendeix al aproximar-se a les edificacions veïnes per tal de suavitzar la trobada amb les mateixes. En la masia part de la coberta es transforma en lluernari per il•luminar correctament els espais més alts. La volumetria de l'edifici respon a la mateixa topografia del lloc que descendeix i es modela per acabar transformant-se en edifici.
