La Sagrera (Barcelona)
PRESSUPOST(sense iva)
1.287.132,74 €
SUPERFÍCIE CONSTRUÏDA
1.084 m2(edif.) + 380 m2(urb.)
PROMOTOR
BIMSA
DATA DEL PROJECTE
2014
COL·LABORADORS
Manuel Arguijo (estructures)
K2, Eduard Bou (instal.lacions)
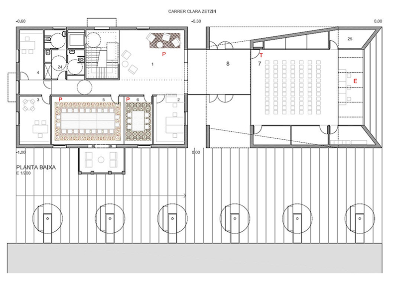
L’edifici existent es troba situat al barri de la Sagrera, a la cruïlla entre els carrers Berenguer de Palou i Clara Zetkin. La proposta tracta de respondre a l’entorn existent i al futur entorn de nova creació en el que es troba, tenint en compte la futura transformació urbanística prevista en els propers anys a la Sagrera.. Pel fet de pertànyer a una zona en fase de creixement, hi ha pocs edificis residencials consolidats al seu entorn més immediat comportant un entorn encara poc definit, només esbossat. La forma se materialitza en un únic senzill volum a mode de petit pavelló, amb una marcada component horitzontal que cerca la visió panoràmica de l’exterior, convidant al “paisatge” (espai exterior) a penetrar dins l’edifici. La nova volumetria es modela tenint en compte tant les considerables alçades de les futures edificacions (PB+6 i PB+10) com els espais lliures 6b previstos.
Es preveu que l’accés principal sigui a peu pla des del carrer Clara Zetkin, en el punt de connexió entre els dos edificis, de manera que el vestíbul travessa l’edifici cap al passatge interior.
La petita ampliació o petit pavelló és l’element clau que permet d’una banda suavitzar la imatge tan rígida i hermètica de l’edifici existent i d’altra banda millorar la seva relació amb el futur espai lliure exterior previst dins la illa. La volumetria de la petita ampliació que parteix d’una forma senzilla es va modelant en el seu recorregut: es distancia mitjançant un tall de l’edifici existent, la coberta baixa en el punt d’acollida dels visitants i puja al final de la sala per treure el cap i mirar cap al parc. Dins la pròpia volumetria el pavelló finalitza amb unes petites grades que fan participar a l’edifici d’allò que a fora es produeix.
