Vic (Osona)
PRESSUPOST(sense iva)
1.545.776,68 €
SUPERFÍCIE CONSTRUÏDA
1.637 m2(edif.) + 1.547 m2(urb.)
PROMOTOR
Diputació Barcelona
Ajuntament de Vic
DATA DEL PROJECTE
2004
DATA D’EXECUCIÓ
2006
COL·LABORADORS
Manuel Arguijo (estructures)
Lluis Duart (instal.lacions)
Mireia Estrada, estudiant arq.
Mathias Debien, estudiant arq.
PREMIS
1er Premi concurs d'idees 2002
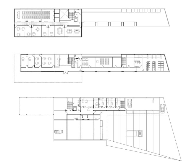
El solar se situa en una zona límit i alhora de transició, sense pautes d'alineació, amb una geometria irregular, producte de la confluència de les vies que l'envolten, i tenint com a úniques referències la seva posició respecte el centre de la ciutat (indicatiu de la direccionalitat de fluxos) i un futur Tanatori, encara absent, amb qui haurà de compartir solar. Gran part d'aquest ha quedat ocupat per una àmplia tanca d'aparcament públic situada al nord, mentre que una tènue línia divideix la resta en dues parcel•les només iguals en superfície. L'edifici es penja de la traça lineal del carrer. Se situa com una línia horitzontal que reforça la traça del carrer i que acompanya per a alliberar l'espai buit que haurà de discórrer entre aquest (la Comissaria) i el futur Tanatori. L'alineació a carrer tant contundent i més tancada, a l'interior del solar es mostra més irregular i oberta, cercant el diàleg amb el futur company del solar. L'edifici es planteja amb dos accessos oposats. L'accés per al públic es disposa a la cota superior del solar, mentre que l'accés de vehicles s'ubica per la cota inferior del terreny. A dalt s'accedeix pel buit generat entre el volum de la planta primera, emergent i suspès enlaire que avança a buscar el visitant, i el volum amagat a la planta soterrani. La situació del solar en la perifèria més propera del nucli de la ciutat de Vic, en la frontera on el paisatge es transforma en zona terciària d'edificis exempts de caràcter clarament més dispers , fa que es perdi una mica la sensació de protecció permanent dels edificis, el contacte directe i que tot sembli més llunyà, dominant el buit sobre el ple. En aquest context emergeix l'edifici de la nova Comissaria que s'apropa per acollir i orientar als visitants.
