Sant Sadurní d'Anoia (Alt Penedès)
PRESSUPOST(sense iva)
1.713.600,00 €
SUPERFÍCIE CONSTRUÏDA
1.204,00 m2
PROMOTOR
GISA – Generalitat de Catalunya
DATA DEL PROJECTE
2004
COL·LABORADORS
Manuel Arguijo (estructures)
Lluis Duart (instal.lacions)
PREMIS
Seleccionat 2ª fase
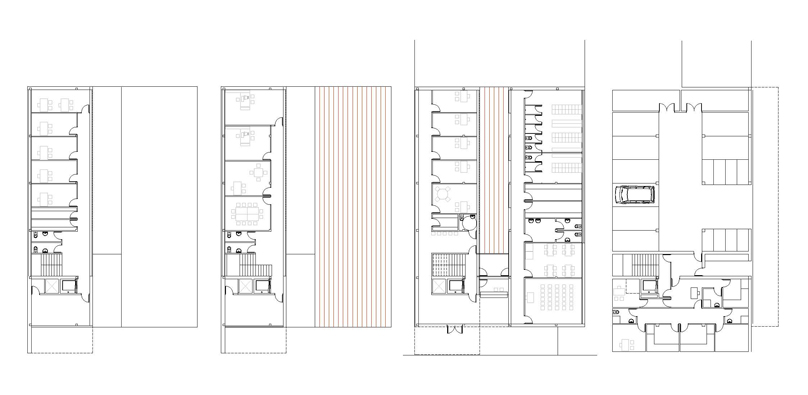
L'edifici es situa proper a les edificacions existents, cercant completar una ordenació ja establerta, mentre que deixa l'espai lliure de manera que aquest es fusiona amb el paisatge. Les distàncies al límit del solar establertes pel planejament i el tractament exterior que es dona a l'edifici acabaran de garantir el grau de privacitat, hermetisme i seguretat òptims per aquest tipus d'equipament L'edifici es planteja amb dos accessos diferenciats i oposats. El pati permet obrir la planta soterrani a la llum i l'exterior, i obtenir una major amplitud de moviments, gaudint d'un espai exterior que pot servir d'aparcament d'ús intern i restingit per agilitzar entrades i sortides, i alhora permet acabar d'adaptar topogràficament l'edifici al solar. El caràcter simultàniament públic i hermètic de l'edifici fa que el programa s'articuli tenint en compte la importància, en aquests tipus d'edificis, de diferenciar les zones d'atenció al públic de les zones internes, privades i d'accés restringit, que són la majoria. A nivell de programa la secció plantejada ajuda a estructurar, organitzar i independitzar les diferents àrees segons una jerarquia i un organigrama de funcionament molt específic. Totes les dependències van apareixent amb els diferents graus d'accessibilitat. A la planta inferior se situen les àrees de persones detingudes i l'aparcament de vehicles policials. En planta baixa se situen, a la franja que dona al carrer de Maria de Montserrat, l'àrea de recepció i atenció al ciutadà amb accés des del carrer d'Alacant i l'àrea de serveis dels Mossos en una segona franja més privada. El volum superior de planta primera que avança i marca l'accés, l'ocupa l'àrea de Comissaria restringida.
