Sabadell(Vallès Occidental)
PRESSUPOST(sense iva)
683.836,79 €
SUPERFÍCIE CONSTRUÏDA
4.017 m2
PROMOTOR
Generalitat de Catalunya - GISA
Departament d'Educació
DATA DEL PROJECTE
1999
DATA D’EXECUCIÓ
2000
COL·LABORADORS
Xavier Bonet i Dolors Cervantes
J. Capilla (estructures)
Lluis Duart (instal.lacions)
PREMIS
1er Premi concurs d'idees 1998
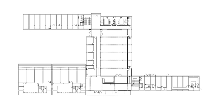
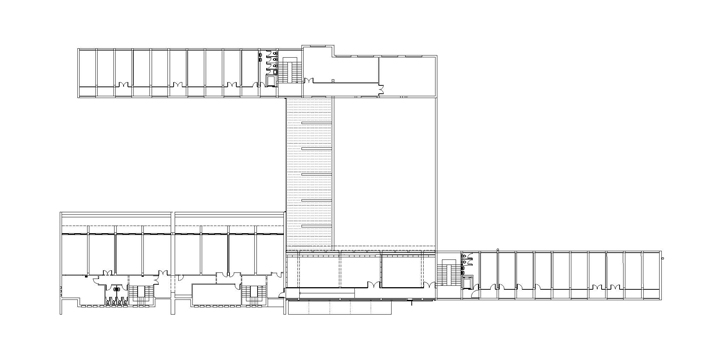
L'IES es localitza en un solar de 8.170 m2. Està format per dues edificacions allargades de tres plantes d'alçada que acoten el gimnàs i un edifici rectangular exempt dels anteriors, de dues plantes, amb els paviments desnivellats respecte dels restants. El vestíbul creix, fins a connexionar amb l'edifici actualment deslligat de la resta i tot ell en alçada, amb un espai destinat a biblioteca i un pas en rampa per a la unió entre els edificis deslligats i desnivellats. En planta baixa s'amplia el volum del gimnàs amb l'administració i un nou pas des del vestíbul, fins a l'altre volum allargat, aconseguint connectar tot el centre en planta baixa. En l'edifici central s'eliminen totes les particions que volten l'actual gimnàs, es col•loca la zona d'administració sobre la façana del nord-est. Entre el gimnàs i l'administració es disposa el pas en rampa que unirà les dos branques principals del centre. Amb aquesta intervenció el bloc central s'obre al exterior produint una continuïtat visual i espacial entre els dos patis. El gimnàs i l'administració es tracten com a caixes envidrades que permeten una gran permeabilitat visual de tot l'àmbit. La secció transversal d'aquest cos manté l'alçada actual del gimnàs i dóna una més baixa a l'administració i a l'espai de transició entre l'interior i el pati de ponent. La construcció de la coberta situada a menys alçada permet la entrada de llum a través d'unes targes de vidre que recorren la façana de llevant.
