Collbató(Baix Llobregat)
PRESSUPOST(sense iva)
2.508.174,71 €
SUPERFÍCIE CONSTRUÏDA
3.214 m2
PROMOTOR
Generalitat de Catalunya - GISA
Departament d'Educació
DATA DEL PROJECTE
2001
DATA D’EXECUCIÓ
2003
COL·LABORADORS
Manuel Arguijo (estructures)
Lluis Duart (instal.lacions)
Anna Niubó, estudiant arq.
Miguel Fdez., estudiant arq.
Nayra Iglesias, estudiant arq.
PREMIS
1er Premi concurs d'idees 2000
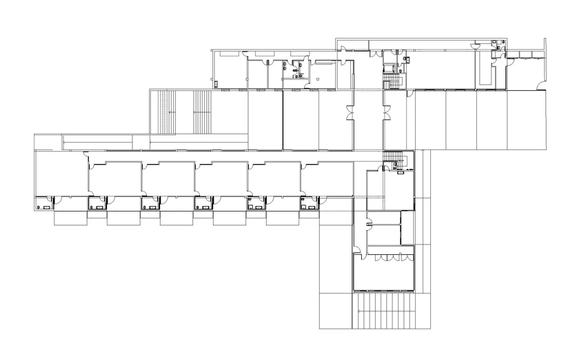
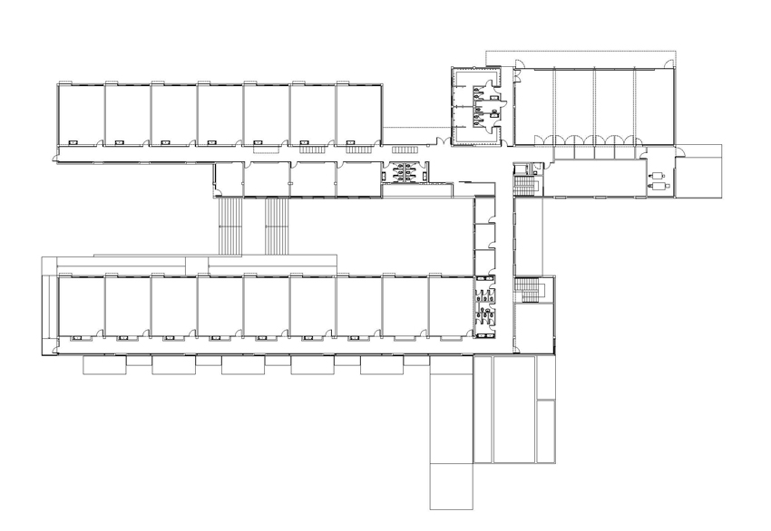
L'edifici tracta d'aprofitar-se de l'entorn tan privilegiat en el que es troba, tenint com a teló de fons la muntanya de Montserrat. En aquest sentit el projecte és una clara resposta a tot això, acompanyant el gest de la secció de l'edifici que es plega tractant d'agafar fragments d'aquest paisatge en totes direccions. L'accés a l'edifici es produeix per la zona baixa del solar. Aquesta manera d'accedir fa que l'aproximació a l'edifici sigui més tranquil•la i en aquest recorregut cap a l'escola es tingui la perspectiva d'aquesta visió durant uns minuts mentre es puja per una lleugera rampa cap a l'interior del vestíbul. Punt en què es pot optar per recórrer l'interior o travessar i tornar a sortir a la part alta del solar. Les cobertes s'inclinen obrint-se cap al nord i cap a Montserrat aprofitant l'orientació. I en aquest gest d'obrir-se es trenquen per una petita escletxa que cerca tenir referència de la llum de sud. D'aquesta manera les majors obertures es produeixen cap a on no hi ha possibilitats d'enlluernaments.
