Torres de Segre(Segrià)
PRESSUPOST(sense iva)
2.285.147,03 €
SUPERFÍCIE CONSTRUÏDA
2.053 m2
PROMOTOR
Generalitat de Catalunya - GISA
Departament d'Educació
DATA DEL PROJECTE
2003
DATA D’EXECUCIÓ
2005
COL·LABORADORS
David Garcia BIS arqs (estructures)
Lluis Duart (instal.lacions)
Mathias Debien, arq.
Mireia Estrada, estudiant arq.
Eva Ferrer, estudiant arq.
PREMIS
1er Premi concurs d'idees 2002
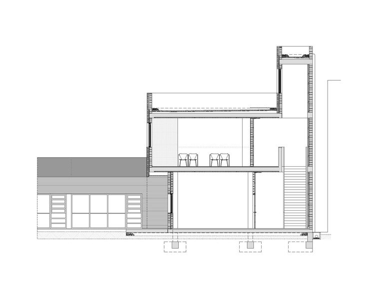
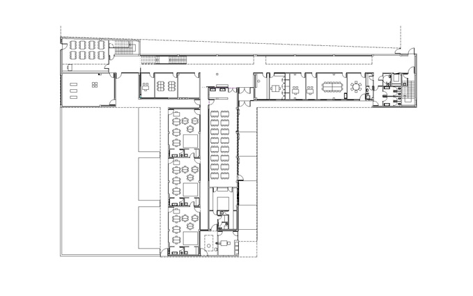
El solar del projecte, se situa en un entorn dispers i encara en fase de construcció i consolidació. Moltes parcel•les són buides i d'altres es troben ocupades per naus que pertanyen a una tipologia i escala diferent. La parcel•la en qüestió comparteix illa amb tres d'aquestes naus plantejant la problemàtica de com integrar les corresponents mitgeres dins el recinte de l'escola. L'edifici, en resposta, crea el seu propi àmbit pel desenvolupament de les activitats escolars. Opta per donar l'esquena a les naus i obrir-se cap al poble, única referència a nivell d'ordenació i relació amb l'entorn, amb l'església i l'horta en darrer terme. El volum principal es col•loca revestint la mitgera de les naus, com a nova pell i actuant com a teló de fons de l'accés. El cos més baix, destinat al cicle d'educació infantil i menjador, se situa de forma perpendicular marcant l'entrada i independitzant els patis d'infantil i primària. El recorregut sota el porxo serveix d'espai previ de transició, de manera que l'aproximació a l'edifici sigui més pausada i tranquil•la. Un cop dins el vestíbul, tot és diferent. Una franja de llum zenital banya el mur del fons, que revesteix la gran mitgera, il•luminant el triple espai lineal de les escales, que es converteix en un joc d'endevinalles per als més petits.
