Sidamon(Pla d'Urgell)
PRESSUPOST(sense iva)
622.480,00 €
SUPERFÍCIE CONSTRUÏDA
620,00 m2
PROMOTOR
Generalitat de Catalunya
Departament d'Educació
DATA DEL PROJECTE
2006
COL·LABORADORS
Eskubi - Turró arqts (estructures)
Lluis Duart (instal.lacions)
PREMIS
Seleccionat 2ª fase
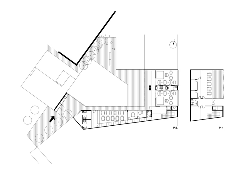
Es planteja que l'accés principal a nivell d'alumnes sigui des del carrer de la Generalitat. Es preveu que, degut a la proximitat de la pista esportiva i vestidors, l'escola pugui utilitzar aquestes instal•lacions. Aquest fet fa que sigui important la relació que s'estableix entre el nou edifici docent i l'equipament esportiu, cercant una proximitat d'accessos. Alhora, la recent construcció de la llar d'infants municipal amb accés des del carrer de la Generalitat així com la disposició de la major part del programa d'aulari del nou edifici a la planta baixa (cota pati) i planta primera són fets que reforcen la idea de plantejar l'accés per aquest cantó. Per produir l'accés al nou centre escolar s'aprofita la recent adequació de l'accés a la nova llar d'infants que ha comportat un eixamplament de l'espai de vorera, creant un lloc de trobada per a la organització dels accessos, les esperes i transicions. Des del punt de vista urbà, el projecte parteix de dos principis: d'una banda, recollir la traça del carrer de la Font situant-se al costat d'uns habitatges adossats amb alineació a vial, mantenint la profunditat edificable de 12 m marcada pels mateixos i mantenint un ordre dins una illa caracteritzada per una multitud de directrius i un desordre generalitzat, i d'altra banda recollir l'accés al centre des del carrer de la Generalitat de manera que la planta baixa sobresurt per acollir al visitant.
