La Fatarella(Terra Alta)
PRESSUPOST(sense iva)
1.276.300,00 €
SUPERFÍCIE CONSTRUÏDA
1.070,00 m2
PROMOTOR
Generalitat de Catalunya
Departament d'Educació
DATA DEL PROJECTE
2006
COL·LABORADORS
Eskubi - Turró arqts (estructures)
Lluis Duart (instal.lacions)
PREMIS
Seleccionat 2ª fase
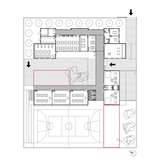
El Centre d'Educació Infantil i Primària Los Castellets es troba disgregat en dos edificis situats en solars separats per uns 60 m de distància. Es tracta de conservar l'edifici més gran unificant tot el programa en un únic recinte i ampliant-lo fins a 5 unitats. L'actual edifici de planta baixa se situa al NE del recinte a uns 4,70 m del carrer i separat uns 4,35 m de les parcel•les veïnes deixant la resta de parcel•la situada al SO com a pati. La parcel•la de superfície 1.762 m2 i geometria rectangular es veu ampliada en aquesta part posterior afegint-se una franja de 1.000 m2 per tal de disposar la nova ampliació. La proposta intenta mantenir al màxim l'estructura i imatge exterior de l'edifici existent, alhora que cerca ressaltar i diferenciar-se del mateix. El nou volum es desenvolupa en planta baixa i connecta amb l'edifici existent de manera puntual per tal de marcar una independència formal. Es planteja que l'accés principal es produeixi en el punt d'unió d' ambdós edificis. Les aules d'infantil es disposen orientades a sud cercant la màxima radiació solar i una connexió directa amb el seu propi pati, mentre que les aules de primària s'orienten a l'oest cercant les vistes cap al paisatge obert. L'aprofitament de la superfície i distribució de l'espai es manifesta en un clar esquema de circulacions i zonificació dels diferents espais tenint com a centre de connexió el vestíbul des del que pengen l'aulari i els espais comuns i administració.
