Albatàrrec(Segrià)
PRESSUPOST(sense iva)
2.521.431,04 €
SUPERFÍCIE CONSTRUÏDA
2.769 m2
PROMOTOR
Generalitat de Catalunya - GISA
Departament d'Educació
DATA DEL PROJECTE
2005
DATA D’EXECUCIÓ
2007
COL·LABORADORS
David Garcia BIS arqs (estructures)
Lluis Duart (instal.lacions)
Mireia Estrada, estudiant arq.
Merçè Mundet, estudiant arq.
PREMIS
.1er Premi concurs d'idees 2004
.Seleccionat a la 2ª Mostra d'Arquitectura de les terres de Lleida
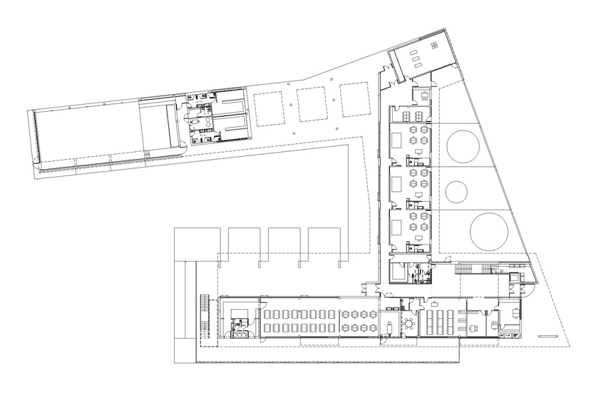
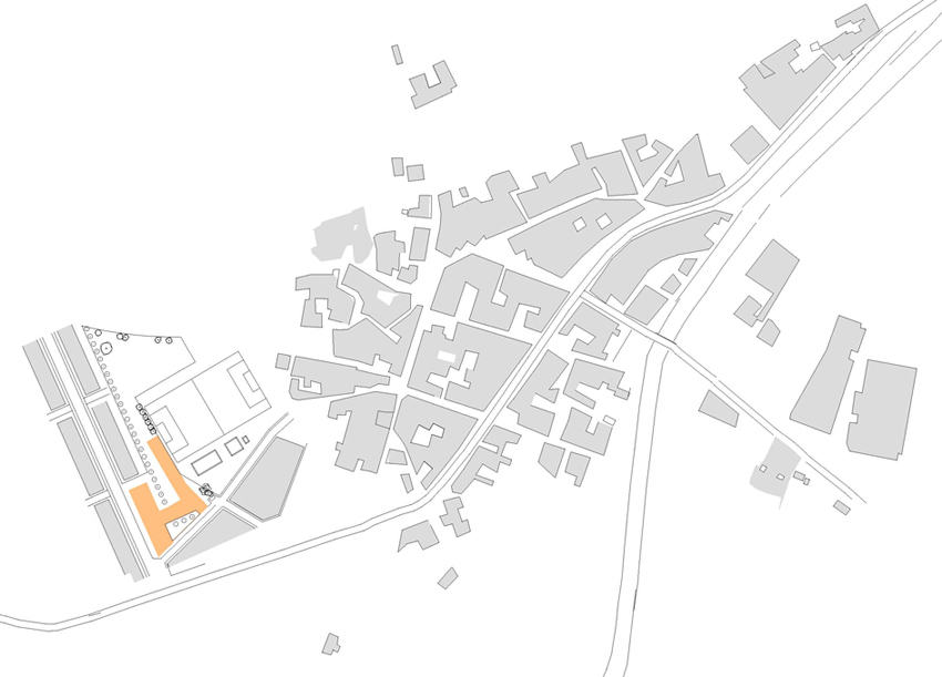
La forma es materialitza a partir de la juxtaposició i superposició de tres volums simples, amb una marcada component horitzontal que cerca la visió panoràmica de l'exterior, invitant al paisatge a penetrar dins l'edifici. El solar, de forma totalment irregular es troba fragmentat en dues parts unides per una estrangulació. L'edifici es situa en una d'aquestes parts, la que limita amb el carrer Sudanell, deixant la resta com a pati. Aquesta fragmentació provoca que, al final, el solar per encabir l'edifici sigui de reduïdes dimensions. Des del punt de vista urbà, el projecte parteix de dos principis: d'una banda, recollir la traça existent del carrer Sudanell que prové del poble així com la traça futura e immediata del nou carrer que preveu el planejament al límit oest de la parcel•la; i de l'altre cercar, amb la seva disposició i formalització les millors vistes i orientació. L'edifici es desplaça lateralment cap a la cantonada sud-oest, dirigint la mirada del cos més alt cap el poble, amb la zona esportiva, el castell i l'església en darrer terme. Les aules d'infantil, més introvertides gaudeixen del seu propi pati, girant de costat per cercar la bona orientació.
