Sant Vicenç dels Horts
(Baix Llobregat)
PRESSUPOST(sense iva)
3.232.260,41 €
SUPERFÍCIE CONSTRUÏDA
3.610 m2
PROMOTOR
Generalitat de Catalunya - GISA
Departament d'Educació
DATA DEL PROJECTE
2007
DATA D’EXECUCIÓ
2009
COL·LABORADORS
Eskubi - Turró arqts (estructures)
Lluis Duart (instal.lacions)
Raquel Masana arqta.
Mireia Estrada, estudiant arq.
Raul Retuerta, estudiant arq.
Sandra Benitez, estudiant arq.
PREMIS
1er Premi concurs 2005
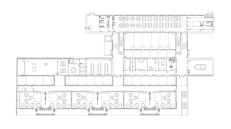
L'edifici del Centre d'Educació Infantil i Primària La Vinyala es situa al carrer Sant Josep 99, de Sant Vicenç dels Horts. El recinte de l'escola limita al SO amb el carrer Claverol de recent urbanització, al NO amb el carrer Sant Josep/Avda Torrelles, al NE amb diversos edificis d'habitatges de considerable alçada i amb el carrer de La Vinyala. Inicialment, dins el recinte es trobaven 3 edificacions: l'antiga caseta del conserge, un edifici de dues plantes corresponent a educació infantil i l'edifici principal de planta baixa i tres que encabia el programa d'educació primària, administració, menjador i petita sala de gimnàs, les quals tenien grans deficiències no complint la normativa vigent. La proposta, que només conserva l'últim d'aquests 3 edificis, tracta de regularitzar i ordenar els diferents espais exteriors alhora que intentar aconseguir una bona connexió i orientació de les diferents peces de programa. L'edifici d'ampliació destinat a educació infantil es situa al sud-oest de l'edifici principal com una tercera franja de programa en planta baixa convertint-se en sòcol de l'alçat principal. Això permet compactar el programa deixant la resta d'espai lliure com a pati. Aquest fet queda reforçat, alhora, mitjançant la col•locació del nou volum del gimnàs al SE del pati a la zona menys assolellada, on es situava l' edifici d'infantil enderrocat. La connexió amb el gimnàs es planteja a cobert mitjançant un gran porxo lineal.
