Riudarenes(La Selva)
PRESSUPOST(sense iva)
2.058.700,00 €
SUPERFÍCIE CONSTRUÏDA
2.047,50 m2
PROMOTOR
Generalitat de Catalunya - GISA
Departament d'Educació
DATA DEL PROJECTE
2006
COL·LABORADORS
Manuel Arguijo (estructures)
Lluis Duart (instal.lacions)
PREMIS
Seleccionat 2ª fase
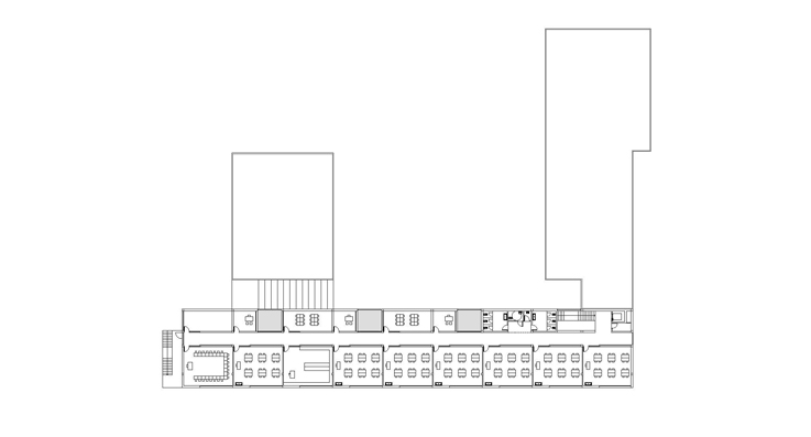
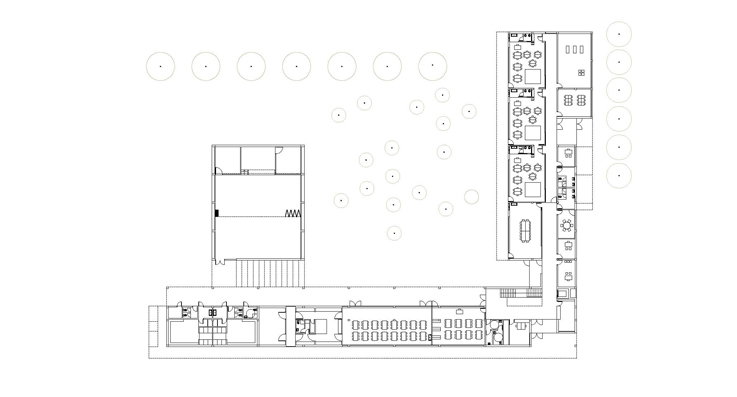
L'edifici es desplaça cap a la cantonada nord del solar, dirigint la seva mirada cap al bosc. El projecte es recolza en el nou carrer previst pel planejament (que unirà l'escola amb el centre) obrint-se cap a l'espès bosc, invitant al paisatge a penetrar dins l'edifici. El volum de les aules d'infantil i el del gimnàs se situen conformant uns patis que ajuden a ordenar l'espai exterior i, alhora, funcionen com a espais intermedis entre l'exterior i l'interior. Es cerquen zones exteriors més acotades i acollidores contrastant amb el tamany desmesurat i desprotegit del bosc, d'aquesta manera l'exterior penetra de forma gradual dins l'edifici. Dins del solar es conserven part dels arbres existents, de manera que l'edifici amb la seva implantació, volumetria i formalització es fusiona amb la trama atapeïda d'arbres fent que els límits del solar es desdibuixin, cercant la màxima integració entre arquitectura i natura. Es planteja l'accés per la cantonada nord del solar recollint l'arribada peatonal. S'independitzen els dos patis, infantil i primària, permetent així un segon accés a l'àrea d'infantil. L'edifici s'articula en tres volums: dos de més petits de només d'una planta (infantil i gimnàs) sobre els que es recolza el cos gran (primària). En el punt d'unió dels cossos més baixos amb el més alt es situa vestíbul, espai d'articulació del programa. Es compacta en gran part fugint d'esquemes excessivament dispersos i aprofitant la possibilitat de construir dues plantes. El programa es distribueix amb passadissos centrals, però sempre cercant que aquests espais gaudeixin de la llum necessària. En planta baixa es disposen diversos envidraments col•locats estratègicament i en planta primera apareixen unes terrasses de forma alternada com a talls que cerquen la llum.
