Campus ETSEA, Lleida(Segrià)
PRESSUPOST(sense iva)
3.130.687,87 €
SUPERFÍCIE CONSTRUÏDA
2.742 m2
PROMOTOR
Universitat de Lleida
DATA DEL PROJECTE
2007
DATA D’EXECUCIÓ
2008
COL·LABORADORS
Manuel Arguijo (estructures)
Einesa (instal.lacions)
Josep Montoliu (arq. tècnic)
Mireia Estrada, estudiant arq.
Andrés Martínez, estudiant arq.
Raquel Masana, arq.
PREMIS
.1er Premi concurs d'idees 2006
.Seleccionat a la 3ª Mostra d'Arquitectura de les terres de Lleida
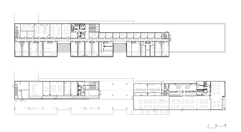
El nou edifici de serveis i laboratoris de recerca de la Escola Tècnica Superior d'Enginyers Agrònoms, per la seva posició dins la futura ordenació i planejament previstos, juntament amb altres de futura creació conformaran la nova façana del Campus. Amb la seva formalització, es resol la considerable llargària del solar aconseguint que la percepció de la mateixa no fos tan acusada. Volumètricament una sèrie de talls o buits verticals escurcen visualment el pla de façana alhora que generen moviment i augmenten la lluminositat de certs espais interiors. La forma es materialitza a partir del modelatge d'un únic volum amb una marcada component horitzontal que cerca la visió panoràmica de l'exterior, convidant al paisatge a penetrar dins l'edifici. La volumetria en el seu recorregut combina diferents alçades culminant en la torre que s'eleva en coberta per a il•luminar el nucli de comunicacions. L'edifici es converteix en filtre i porta amb un doble accés a través del buit en planta baixa que el travessa i en el que convergeixen i es relacionen interior i exterior, l'escala petita del jardí interior i l'escala gran del paisatge infinit. Els serveis generals (bar-cafeteria, copisteria i llibreria) es situen a la planta baixa juntament. En aquest nivell el programa deixa un buit per tal de generar l'accés i alhora separar els usos. A la planta primera es disposen l'àrea d'activitats i l'àrea de serveis científics formades per despatxos i laboratoris.
