Les Masies de Voltregà(Osona)
PRESSUPOST(sense iva)
3.472.887,92 €
SUPERFÍCIE CONSTRUÏDA
2.6021,05 m2
PROMOTOR
Generalitat de Catalunya - GISA
Departament d'Educació
DATA DEL PROJECTE
2009
COL·LABORADORS
Construccions Bosch-Pascual
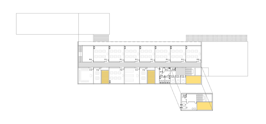
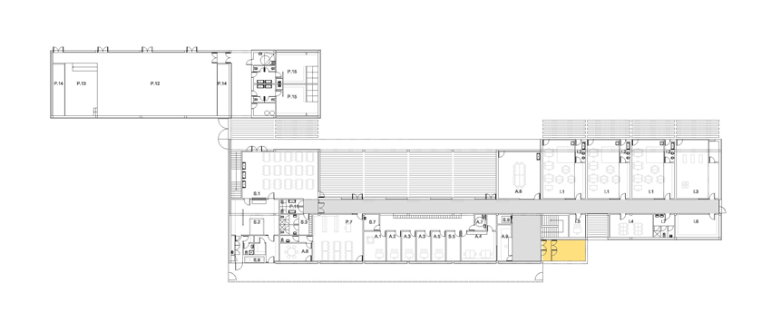
L'edifici se situa de forma lineal amb les directrius de la trama ortogonal i consolidada de les edificacions mes pròximes. El volum principal se situa amb potent façana a carrer i el segon volum, corresponent al gimnàs es disposa de forma paral•lela en un segon terme. D'aquesta manera es deixa que l'espai buit es fusioni amb els diferents límits irregulars del solar corresponents a un entorn més dispers i divers. Tenint en compte l'escala petita de les edificacions més properes, el projecte opta per reduir el seu impacte construint només dues plantes. La forma se materialitza a partir de la juxtaposició i superposició de dos volums simples, amb una marcada component horitzontal que cerca la visió panoràmica de l'exterior. L'edifici que en façana a carrer es mostra més tancat i introvertit, un cop a dins es més obert i atent dirigint la seva mirada cap a les edificacions més antigues del nucli urbà L'accés peatonal pel carrer Esperança serà l'arribada natural. Coincidint amb el passeig verd central del barri la planta baixa de l'edifici es recula provocant un eixamplament de l'espai de vorera, creant un lloc de trobada per a la organització dels accessos, les esperes i transicions, possibilitant tenir un accés independent per l'àrea d'educació infantil. L'espai del patis quedarà definit entre l'edifici i el talús que conforma el turó del nucli antic del poble. Tot el programa es desenvolupa en el volum principal de dues plantes a excepció del volum de gimnàs-vestidors que es desenvolupa en una única planta i es situa de forma paral•lela més en contacte amb la pista poliesportiva.
