Palafolls(Maresme)
PRESSUPOST(sense iva)
6.655.768,97 €
SUPERFÍCIE CONSTRUÏDA
5.381 m2
PROMOTOR
Generalitat de Catalunya - GISA
Departament d'Educació
DATA DEL PROJECTE
2009
COL·LABORADORS
Construccions Bosch-Pascual
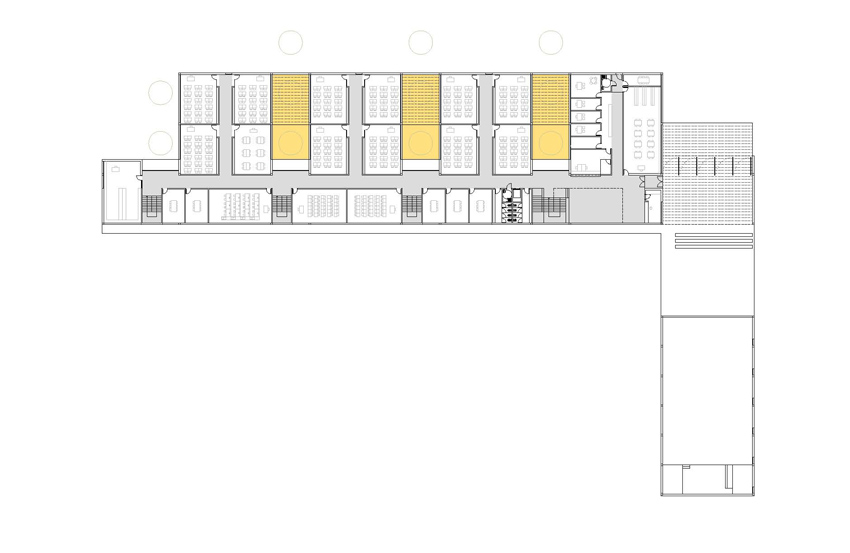
El projecte parteix de dos principis: d'una banda, recollir i reforçar la traça existent del camí de la Ciutadella i de l'altre cercar, amb la seva disposició i formalització, les millors vistes i orientació. L'edifici es compacta i se situa de forma lineal paral•lel a la línea de desnivell existent entre el camí d'accés existent i l'explanació del solar, deixant el màxim de solar lliure per a les pistes i la previsió de futura ampliació i cercant que els espais exteriors resultants quedin ordenats de la manera més aprofitada possible. En façana a carrer (al nord) es mostra més proper al vianant, reduint la seva dimensió. La façana es fragmenta, intercalant uns patis, i aparenta només dues plantes aprofitant el desnivell topogràfic existent. En façana est (nou carrer) es preveu un accés lateral secundari al volum del gimnàs i altres serveis externs, per al seu ús fora de l'horari escolar. L'edifici s'articula en dos volums lineals disposats en forma de L. Tot el programa es desenvolupa en el volum principal de tres plantes a excepció del gimnàs-vestidors i altres serveis que es desenvolupa en una única planta i es situa de forma perpendicular més en contacte amb les pistes poliesportives. Per tal de compactar més l'edifici, tant a la planta baixa com a les dues plantes pis, el programa es distribueix amb passadissos centrals, però sempre cercant que aquests espais gaudeixin de la llum necessària per a un espai que, des del projecte, s'entenen com una zona de moviment i de relació social per a l'alumnat. Apareixen de forma alternada talls que cerquen la llum i es disposen diversos envidraments col•locats estratègicament per cercar transparències i referències de l'exterior.
