Carrer Bailén(Barcelona)
PRESSUPOST(sense iva)
3.465.613,16 € CEIP
1.260.000,00 € llar d'infants
2.644.033,61 € aparcament
SUPERFÍCIE CONSTRUÏDA
3.568 m2 CEIP
824 m2 llar d'infants
4.992 m2 aparcament
PROMOTOR
BIMSA
Ajuntament de Barcelona
DATA DEL PROJECTE
2011
COL·LABORADORS
Manuel Arguijo (estrutures)
Eduard Bou(instal.lacions)
Andrés Martinez de la Riva, arqte.
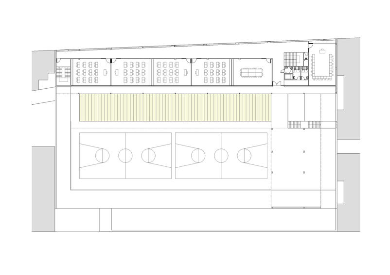
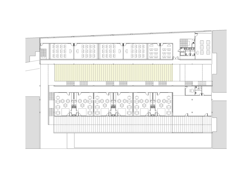
L'escola es tanca al carrer Bailén, fugint del soroll, i s'obre cap al barri de Gràcia, més tranquil i d'edificacions més baixes i afables. L'edifici, que mostra la seva màxima dimensió i alçada al carrer Bailén, s'esglaona cercant el diàleg amb les edificacions més baixes i minimitzant l'impacte de les grans mitgeres laterals. L'edifici que gira en forma d' "U", abraça el pati lineal central, eix de comunicacions per a connexions ràpides i directes. L'accés principal a l'escola es produeix pel punt més baix del carrer Bailén. L'accés a l'escola bressol es resol en planta primera pel carrer de Quevedo, mitjançant un eixamplament de la vorera i aprofitant el desnivell de 2,80 m existent entre aquest punt i la cota d'accés a l'escola. Paral•lelament, existeix un accés secundari a educació infantil, des del passatge que comunica Bailén amb la Pl. John Lennon, mitjançant unes escales exteriors directes. L'accés a l'aparcament es produeix pel punt més baix del carrer Bailén, a prop de l'accés a l'escola. Es preveuen 2 accessos peatonals que, tenint en compte el tancament del passatge a la nit, es situen respectivament a banda i banda. Un al carrer Bailén i l'altre coincidint amb la Pl. de John Lennon. En planta baixa es disposa el vestíbul d'accés principal al CEIP, els serveis comuns (gimnàs-vestidors, menjador-cuina, biblioteca) i l'ampa. En planta primera l'administració, en contacte visual directe amb el vestíbul de planta baixa mitjançant un doble espai. En plantes pis, al volum de Bailén, es disposen les aules de primària abocades cap a l'espai de pati, cercant la màxima tranquilitat, mentre que en planta segona, al volum de Quevedo se situa l'aulari d'infantil i sobre la seva coberta el pati i pistes de primària. L'escola bressol se situa, de forma independent al volum del carrer de Quevedo, a sota de l'aulari d'infantil.
