La Pobla de Segur(Pallars Jussà)
PRESSUPOST(sense iva)
3.763.515,44 €
SUPERFÍCIE CONSTRUÏDA
3.144 m2
PROMOTOR
Generalitat de Catalunya
Departament d'Educació
DATA DEL PROJECTE
2009
DATA D’EXECUCIÓ
2015
COL·LABORADORS
Eskubi Turró arqtes (estructures)
Einesa (instal.lacions)
Glenda Puntel, arq.
Andrés Martinez de la Riva, arq.
Xenia Martin, estudiant arq.
PREMIS
1er Premi concurs d'idees 2006
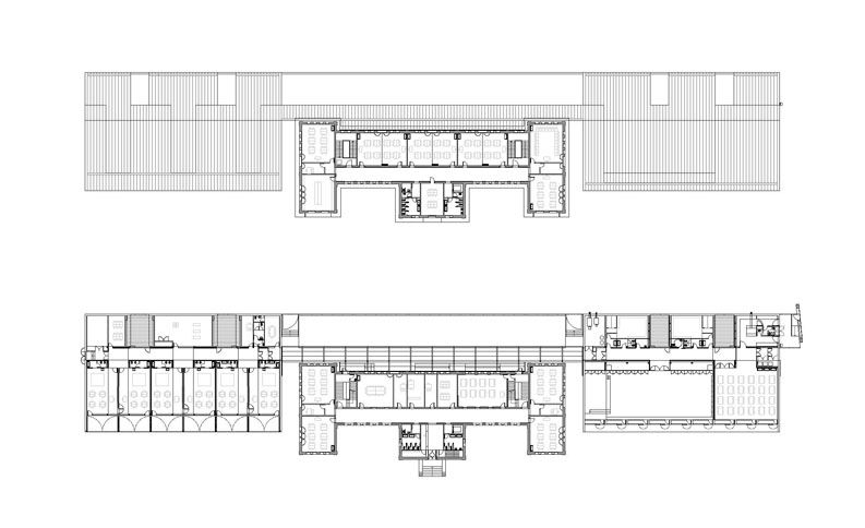
Dins del parc, al mig del qual es troba el camp de futbol, l'escola es situa a la franja sud; entre el camp de futbol i la franja edificatoria que la separa del carrer Industria. La nova ampliació tracta de regularitzar i ordenar els diferents espais exteriors alhora que intentar aconseguir una bona connexió i orientació de les diferents peces de programa. La proposta intenta mantenir al màxim l'estructura i imatge exterior de l'edifici existent, alhora que cerca diferenciar-se del mateix amb una entitat pròpia, però sempre intentant integrar-se el màxim amb respecte i cercant el diàleg entre allò nou i allò existent. Els volums de nova ampliació es desenvolupen en planta baixa i connecten amb l'edifici existent de manera tangencial, mitjançant un porxo lineal, per tal de marcar una independència formal, simplificar les solucions constructives i respectar al màxim la volumetria i imatge exterior de les façanes existents. La proposta planteja destinar tot l'edifici existent a primària, incloent la sala de professors i biblioteca. També es situa l'administració i conserge en relació amb l'accés principal. A la nova ampliació se situa d'una banda el programa de gimnàs-vestidors i d'altra banda el menjador-cuina i aulari d'infantil Tot aquest programa es desenvolupa en planta baixa.
