Montornès del Vallès(Vallès Oriental)
PRESSUPOST(sense iva)
3.445.928,33 €
SUPERFÍCIE CONSTRUÏDA
3.929 m2
PROMOTOR
Ajuntament de Montornès del Vallès
DATA DEL PROJECTE
2017
DATA D’EXECUCIÓ
2018
COL·LABORADORS
Manuel Arguijo (estructures)
K2 Consulting S.L.(instal.lacions)
Pol Mercadé, arq. col.laborador
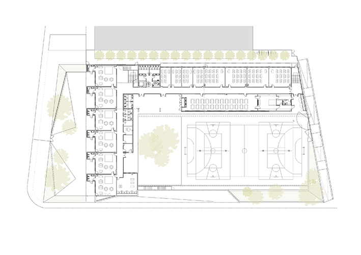
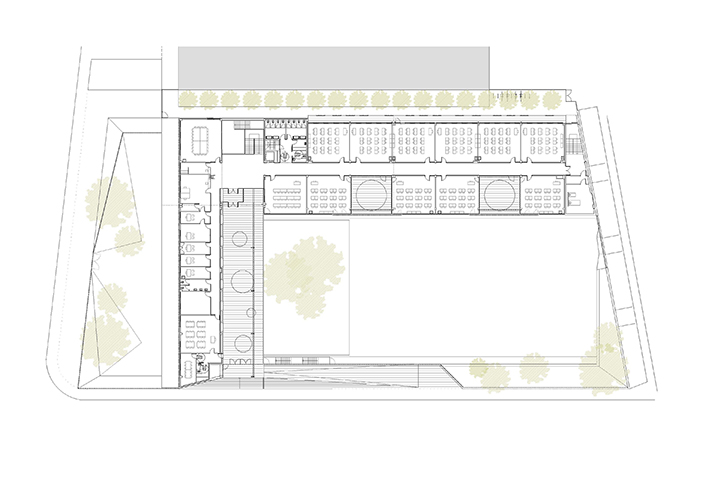
L’edifici s’articula en un volum lineal de dues plantes en forma de “L”. Aquesta disposició és la que permet estructurar els usos i aconseguir independitzar els programes d’infantil i primària.
La disposició del nucli de comunicacions vertical pròxim a la zona d’accés del Pavelló esportiu, garanteix una bona comunicació amb aquest equipament amb el que haurà de compartir ús.
L’edifici s’ubica de forma paral·lela al pavelló i gira en forma de L per tal de cercar l’alineació entre façanes al carrer Castanyers i alhora venir a buscar als visitants acompanyant-los fins a l’accés. Es preveu l’accés sota porxo acompanyats pel volum d’administració amb la visió del pati a la dreta i l’edifici de primària com a teló de fons en tot el recorregut.
Amb aquest gran porxo es crea un espai previ de transició, per a la organització dels accessos, les esperes, i de manera que l’aproximació a l’edifici sigui més pausada i tranquil·la.
La disposició del programa i la formalització de l’edifici s’entrellacen amb la voluntat de crear uns espais agradables, ben il·luminats i ventilats.
Per tal de compactar més l’edifici, tant a la planta baixa com a la primera, gran part del programa es distribueix amb passadissos centrals, però sempre cercant que aquests espais gaudeixin de la llum necessària. En planta primera apareixen uns patis de forma alternada com a talls que cerquen la llum.
La proposta planteja destinar la planta primera i d’accés, a administració i primària. La planta baixa, en contacte directe amb els patis, es destina a infantil, menjador i aules específiques.
