Tremp(Pallars Jussà)
PRESSUPOST(sense iva)
1.638.664,99 €
SUPERFÍCIE CONSTRUÏDA
2.832 m2
PROMOTOR
INCASOL - Generalitat de Catalunya
DATA DEL PROJECTE
2002
DATA D’EXECUCIÓ
2004
COL·LABORADORS
Eskubi Turró arqtes (estructures)
Lluis Duart (instal.lacions)
Mercè Mundet, estudiant arq.
Arwen Pendergast, estudiant arq.
PREMIS
1er Premi concurs d'idees 2001
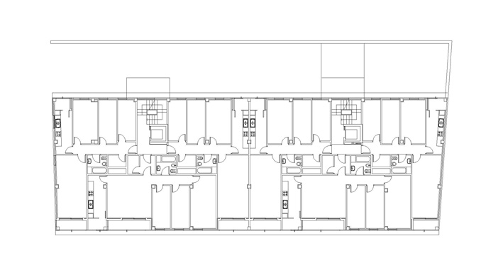
El nou edifici es preveu que en un futur formi part d'una macro-illa travessada per un parc urbà que tractarà a nivell topogràfic l'espai interior. L'accés als vestíbuls dels habitatges es produeix per l'interior de l'illa, a la zona on hi haurà aquest nou parc. L'accés a l'aparcament se situa a l'avinguda Alcalde Josep Rosell, en el punt més favorable topogràficament per tal de necessitar el mínim de rampa possible i optimitzar millor la planta soterrani. L'entrada al local comercial es produeix per aquest mateix carrer. A nivell de programa el projecte s'estructura en: una planta soterrani destinada a aparcament, una planta baixa amb un local destinat a equipament i 3 plantes pis destinades a ús residencial. L'edifici es composa de 2 nuclis de comunicació, cadascun dels quals dóna accés a 3 habitatges per replà. La profunditat de 14 metres del bloc lineal permet resoldre la disposició d'aquests tres habitatges amb totes les sales d'estar orientades a sud.
