Balaguer(La Noguera)
PRESSUPOST(sense iva)
889.370,08 €
SUPERFÍCIE CONSTRUÏDA
1.120,30 m2
PROMOTOR
INCASOL - Generalitat de Catalunya
DATA DEL PROJECTE
2005
COL·LABORADORS
Eskubi Turró arqtes (estructures)
Lluis Duart (instal.lacions)
Mireia Estrada, estudiant arq.
PREMIS
Seleccionat 2ªfase
El nou edifici es situa dins el nucli històric de Balaguer d'origen àrab, amb carrers irregulars, estrets, foscos i en molts casos degradats. El solar, amb una forma absolutament irregular i un desnivell de 3,5, metres té façanes oposades a dos carrers.
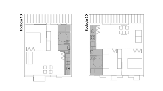
Davant aquest fet i l'entorn en el que s'encabeix el projecte mostra una lectura molt acurada pel mateix i es veu obligat a donar resposta i intervenir partint d'uns objectius molts clars: conservar la canalització del rec i intentar que sigui visitable, dignificar el safareig, continu referent, millorar l'habitabilitat i qualitat del lloc (interior i exterior) i la cerca de la llum i l'aire.
Volíem intervenir dins i fora, cercar una unitat entre el projecte i l'entorn, una major qualitat pels habitatges i per l'espai exterior. No volíem un pati tancat on la zona interior quedés ombrejada. S'aprofita la llum que entra a través de la placeta que es genera amb el safareig i es condueix cap a l'interior. El projecte es converteix en un embut de llum a través dels forats i retranquejos en alçada que deixa la seva volumetria.
Les façanes exteriors es foraden seguint les estrictes condicions establertes per la normativa vigent. Es respecta la proporció de buit sobre ple, l'amplària màxima de 2/3 de l'alçada, la disposició, la superfície màxima de les obertures, etc. Es planteja resoldre totes les façanes amb la combinació de només dues tipologies de forat (simple i doble) i elements d'enfosquir de diferents tonalitats que es van alternant de manera diferent, però garantint sempre que totes les peces tinguin la mateixa superfície d'il•luminació. Són façanes plantejades com una continuació de l'entorn i que en arribar al safareig es fiquen, com un embut, cap a dins el pati.
