Breda(La Selva)
PRESSUPOST(sense iva)
2.457.430,00 €
SUPERFÍCIE CONSTRUÏDA
3.095,25 m2
PROMOTOR
INCASOL - Generalitat de Catalunya
DATA DEL PROJECTE
2006
COL·LABORADORS
Eskubi Turró arqtes (estructures)
Lluis Duart (instal.lacions)
PREMIS
Seleccionat 2ªfase
El nou edifici, juntament amb el futur bloc lineal que es preveu al costat, es converteix en nou sòcol les façanes posteriors del casc antic difícils de ordenar degut al seu alt grau de degradació i desordre.
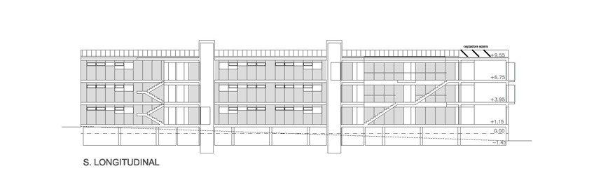
L'edifici té una orientació de les seves façanes longitudinals clarament est-oest, Aprofitant la bona orientació i l'amplada de 15m es planteja un esquema que permet obrir sempre els espais principals dels habitatges cap a l'exterior gaudint d'assolellament directe.
La pendent del carrer permet aconseguir una major privacitat del habitatges situats en planta baixa i alhora facilita l'accés a l'aparcament pel tester sud pràcticament sense necessitat de rampa.
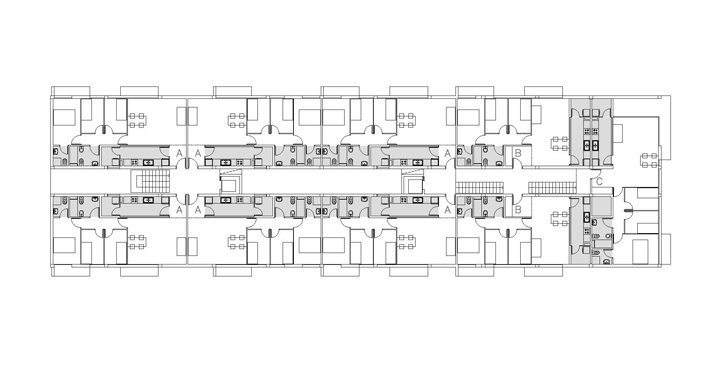
El programa el projecte s'estructura en: una planta soterrani destinada a aparcament amb 26 places, la planta baixa destinada a habitatges amb els vestíbuls i un local per a previsió d'ubicació de C.T. i dues plantes pis destinades a habitatges. L'edifici s'organitza amb dos nuclis d'escala els quals donen accés a 4 i 5 habitatges per replà respectivament. Tots els habitatges són de tres dormitoris i es resol amb la combinació de tres tipologies.
Es planteja un esquema de seqüència de franges. Dues franges d'habitatges separades per un tall lineal en el que es col•loquen patis i escales. Aquest espai comunitari interior situat entre ambdues franges edificades permet gaudir de ventilació natural creuada a tots els habitatges.
