La Roca del Vallès(Vallès Oiental)
PRESSUPOST(sense iva)
1.131.261,60 €
SUPERFÍCIE CONSTRUÏDA
1.425 m2
PROMOTOR
INCASOL - Generalitat de Catalunya
DATA DEL PROJECTE
2007
COL·LABORADORS
Eskubi Turró arqtes (estructures)
Lluis Duart (instal.lacions)
Elsa Torres i Glenda Puntel, arq.
Oriol Raventós, estudiant arq.
PREMIS
1er Premi concurs d'idees 2006
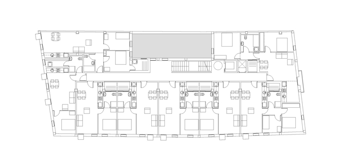
El nou edifici es situa al solar del vell ajuntament. La parcel•la te tres façanes orientades a carrer. La façana més llarga (35 m) té una orientació sud i en aquest cantó el planejament preveu una amplia zona d'espai públic. Seguint premisses de concurs, es recuperen i reubiquen els elements de finestres i portalada de l'antiga façana de l'Ajuntament.
El programa s'estructura en una planta baixa, destinada a Centre d'Assistència per a gent gran i l'accés als habitatges, i dues plantes pis, destinades a habitatges. L'edifici s'organitza amb un únic nucli d'escala el qual dona accés a 9 habitatges per replà. A cada planta es disposen 8 habitatges d'un dormitori i 1 de dos dormitoris, tot resols amb la combinació de cinc tipologies d'habitatges.
Aprofitant la bona orientació es planteja un esquema que permet obrir sempre els espais principals dels habitatges cap a l'exterior. La disposició de totes les sales d'estar i la majoria de dormitoris en façana exterior permet que gaudeixin d'una millor il•luminació així com del màxim número d'hores d'assolellament directe.
Dins dels habitatges es preveu un espai per a l'emmagatzematge selectiu de les escombraries, així com un espai per instal•lar la rentadora i resoldre l'estesa de roba de manera puntual. Al disseny interior dels habitatges s'ha tingut en compte que les persones amb mobilitat reduïda puguin visitar l'habitatge amb l'itinerari d'accés des del carrer practicable.
A les zones de pas comunitàries s'aconsegueix il•luminació natural i el màxim de ventilació natural per tal de garantir la qualitat i confort d'aquests espais i que els habitatges gaudeixin de ventilació creuada.
