Lleida(Segrià)
PRESSUPOST(sense iva)
840.803,28 €
SUPERFÍCIE CONSTRUÏDA
1.290 m2
PROMOTOR
Consell Català de l'Esport
Generalitat de Catalunya
DATA DEL PROJECTE
2009
COL·LABORADORS
Manuel Arguijo (estructures)
Lluis Duart (instal.lacions)
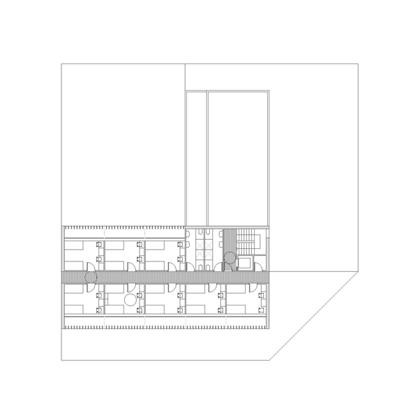
La proposta es materialitza a partir del modelatge d'un únic volum continu, en forma de L que en el seu recorregut treu el cap i s'aixeca per a mirar al passeig i al riu, cercant la visió panoràmica de l'exterior, convidant al paisatge a penetrar dins l'edifici. El projecte tracta donar resposta a l'entorn existent en el que es troba, que parteix de dos principis: recull la traça de l'IES Màrius Torres, i el volum més alt se situa en la façana del riu, aprofitant la seva màxima alçada, mostrant de forma contundent la seva presència i reflectint el seu caràcter públic i representatiu, aportant un nou referent de qualitat arquitectònica. L'edifici es desplaça lateralment cap a la cantonada est del solar. Amb la nova disposició en L es deixa el màxim d'espai exterior lliure per a gaudir de zones exteriors d'esbarjo. La volumetria de l'edifici s'esglaona cercant la creació d'espais exteriors d'esbarjo (terrasses) vinculats als espais interiors d'oci i descans. Des de la volumetria i a través del tractament de les seves façanes, la proposta dona resposta a aquesta posició entre dos espais buits de caràcter molt diferenciat (l'espai semi-acotat del patii l'espai sense límit del passeig i el riu). Exteriorment l'edifici dirigeix la seva mirada cap al passeig i el riu. A dins, el volum més alt es mostra més tancat cercant la intimitat del espais residencials respecte a l'edifici de l'IES, mentre que el volum més baix es converteix en mirador cap al camp esportiu. La pell que envolta l'edifici es fragmenta i s'esglaona trobant, a cadascun dels cinc nivells, la seva específica relació amb l'exterior. Gaudeix del anar i venir de la gent, del jardí en planta baixa, de les vistes del paisatge i la tranquil•litat en les plantes superiors.
