Esplugues(Barcelona)
PRESSUPOST(sense iva)
1.704.684,83 €
SUPERFÍCIE CONSTRUÏDA
2.953,10 m2
PROMOTOR
IMPSOL
Area Metropolitana de Barcelona
DATA DEL PROJECTE
2009
COL·LABORADORS
Manuel Arguijo (estructures)
Lluis Duart (instal.lacions)
Verónica Gallego, estudiant arq.
PREMIS
Seleccionat 2ªfase
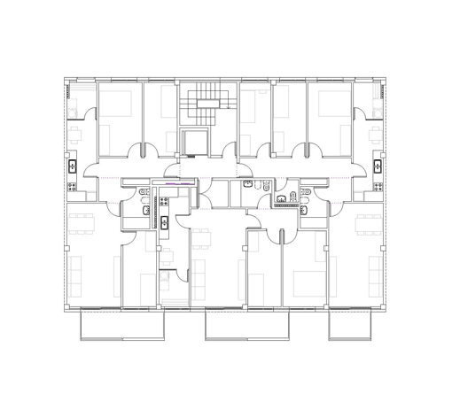
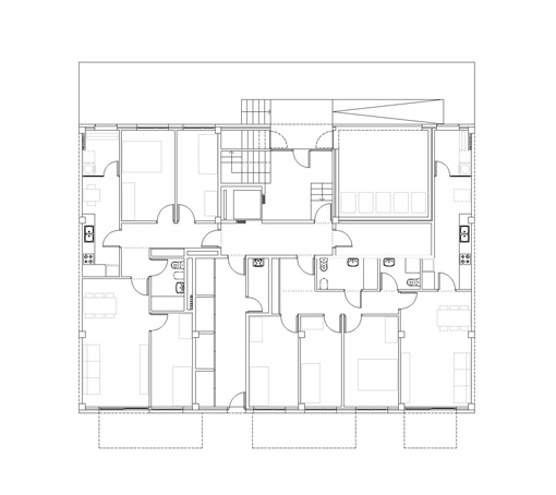
Dins del pla parcial, situat al nord de l'àmbit i amb façana al carrer Esperança Martí, vial peatonal de nova creació ja urbanitzat, es planteja un edifici lineal d'ús residencial, del qual forma part la promoció de HPO. Entre aquesta edificació i el talús de l'autopista apareix una zona verda peatonal que finalitza amb un espai públic de més amplitud. El bloc lineal d'us residencial té 84 m de llargada per 13,9 m d'amplada i es desenvolupa en PB+5PP. D'aquesta franja edificatòria, actualment es troba construït el primer tram. El nou edifici de HPO se situa al mig del gran bloc, a continuació d'aquest primer tram ja edificat. La seva longitud serà de 19,19 m restant pendents d'edificar 25,90 m. L'edifici té una orientació clarament nord-sud, amb una façana longitudinal alineada a carrer i orientada a nord i a l'autopista, i la façana longitudinal interior d'illa orientada a sud. La parcel•la destinada a HPO, té forma rectangular (de 19,19 x 30,98) amb una petita franja de 4 m que es prolonga fins al carrer Pep Ventura. La superfície de la finca és de 633,79 m2 amb una edificabilitat de 1.600,34 m2t. Dins el solar i com a la resta del gran bloc lineal el Pla Parcial estableix una sèrie de franges successives. Des del carrer peatonal els primers 3m es defineixen com a franja enjardinada privada, a continuació 13,90 m d'edificació en PB+5PP, 5 m de jardí privat i la resta de jardí comunitari. L'edifici es planteja com una continuació de l'actual ja construït i respon tant a l'entorn existent com al de nova creació en el que es troba, tenint en compte l'edificació futura que encara resta per construir. L'accés a l'edifici es planteja des del nou carrer peatonal en façana nord.
