Puig Reig(Berguedà)
PRESSUPOST(sense iva)
1.269.727,14 €
SUPERFÍCIE CONSTRUÏDA
745,00 m2
PROMOTOR
CatSalut - GISA
Generalitat de Catalunya
DATA DEL PROJECTE
2005
COL·LABORADORS
Manuel Arguijo (estrutures)
Lluis Duart (instal.lacions)
PREMIS
Seleccionat 2ª fase
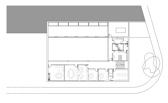
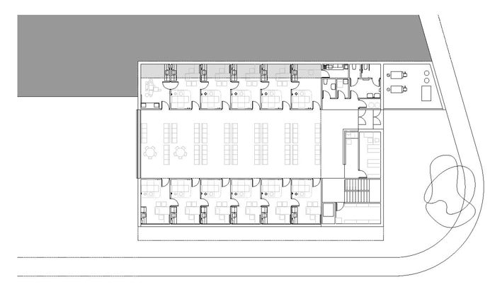
La proposta es compacta fugint d'esquemes excessivament dispersos. En planta baixa es disposen els espais d'ús públic, mentre que en planta primera es situen les àrees d'ús intern. Aquesta disposició facilita l'accés i els recorreguts interiors tant a la gent gran com a les persones amb mobilitat reduïda, alhora que permet que les zones més internes siguin d'accés restringit als usuaris. La disposició de les sales de espera constituint un únic espai central i diàfan permet concentrar al màxim les circulacions alhora que, amb la seva doble alçada, es converteix en l'element captador de llum que permet il•luminar no només la pròpia sala sinó també les zones de circulació de planta primera, tot cercant les referències amb l'exterior en planta baixa als seus extrems. La disposició del programa i la formalització de l'edifici s'entrellacen amb la voluntat de crear uns espais acollidors, agradables i ben il•luminats. Cada espai aprofita la seva posició per obtenir les vistes o la llum més òptima. A nivell interior es planteja un edifici flexible i versàtil que pugui donar resposta a futures evolucions i transformacions dels espais. El doble espai de la sala d'espera permet la interrelació entre plantes cercant visuals diagonalitzades i conduir la llum als espais més interiors de planta baixa. Les obertures en el projecte no sempre es plantegen com a relació directa, sinó que en molts casos cerquen la llum o la visió diagonalitzada, però no les visuals directes. Per a una millor optimització i polivalència dels espais, totes les sales de consulta es plantegen intercomunicades. La claredat i simplicitat de l'estructuració i disposició del programa, així com la situació de l'accés a l'edifici, permeten possibles futurs canvis funcionals així com el possible creixement de l'edifici cap a la resta de solar no edificat.
