Sant Joan de les Abadesses(Ripollès)
PRESSUPOST(sense iva)
951.017,11 €
SUPERFÍCIE CONSTRUÏDA
558 m2
PROMOTOR
CatSalut - GISA
Generalitat de Catalunya
DATA DEL PROJECTE
2010
DATA D’EXECUCIÓ
2014
COL·LABORADORS
Manuel Arguijo (estrutures)
Lluis Duart (instal.lacions)
Arnau Boronat, estudiant arq.
PREMIS
1er Premi concurs d'idees 2009
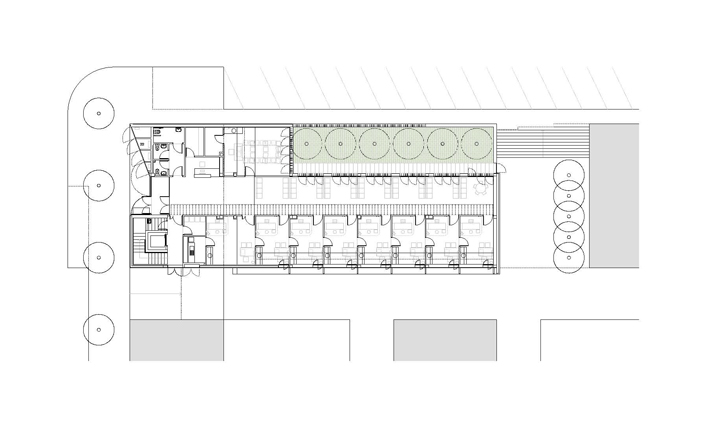
L'emplaçament es caracteritza pel seu entorn construït, rodejat d'edificis de considerable alçada. L'edifici es mostra molt tancat i hermètic respecte als potents edificis que l'envolten amb obertures molt puntuals i controlades. El nou consultori es resol amb un únic edifici que combina diferents alçades per donar resposta tant al seu entorn i al programa funcional. La part més alta del conjunt volumètric se situa al carrer Ramon Urg cercant reforçar la seva traça i descendeix en el seu recorregut cap a la Colònia Espona per abraçar finalment el pati lineal sobre el qual s'aboquen les sales d'espera i l'aula d'educació sanitària. Un volum de diferents alçades ressegueix tot el solar creant un espai propi i més introvertit. El pati es el mecanisme que esmorteeix i filtra l'exterior cap a l'interior. En planta primera, el volum que marca l'accés, s'aixeca per convertir-se en mirador, cercant des de la sala de descans del personal la visió llunyana del paisatge. El pati queda semisoterrat respecte al carrer cercant una intimitat que s'acaba d'aconseguir a través del verd que generen els arbres dins el jardi En planta baixa es disposen els espais d'ús públic, mentre que a les plantes altes es situen les àrees d'ús intern. Aquesta disposició facilita l'accessibilitat, l'orientació i els recorreguts interiors als usuaris, en especial a la gent gran i a les persones amb mobilitat reduïda.
