Verges(Baix Empordà))
PRESSUPOST(sense iva)
504.056,81 €
SUPERFÍCIE CONSTRUÏDA
290 m2
PROMOTOR
CatSalut - GISA
Generalitat de Catalunya
DATA DEL PROJECTE
2012
DATA D’EXECUCIÓ
En procés
COL·LABORADORS
Manuel Arguijo (estrutures)
Eduard Bou(instal.lacions)
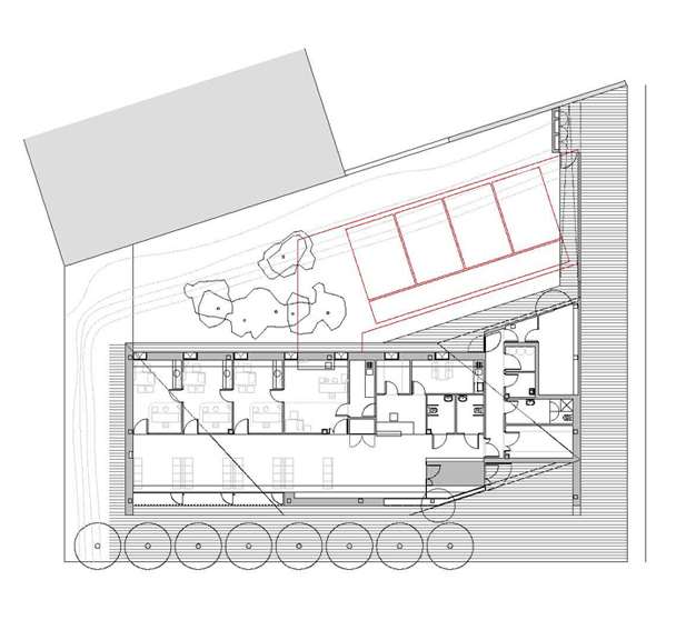
L'edifici es mostra molt tancat i hermètic respecte als potents edificis que l'envolten amb obertures molt puntuals i controlades. Tenint en compte la reduïda dimensió del programa, el nou consultori es resol amb un edifici d'una única planta que es modela tractant de donar resposta tant a l'entorn que l'envolta com al programa funcional que alberga i als seus requeriments. El nou volum es disposa de forma lineal aprofitant la dimensió total de llargada de 30 m amb front al futur aparcament. En la trobada amb el carrer Xaloc, l'edifici es doblega reculant i fent un plec enrera. Així, amb aquest únic gest, permet crear un espai d'acollida i alhora s'aproxima l'edifici a les edificacions del darrera equilibrant la dimensió del pati resultant. Simultàniament les cobertes s'inclinen suavitzant la forma de l'edifici i cercant un diàleg amb les construccions més properes. Aquest fet permet alhora jerarquitzar els espais interiors i guanyar alçada a la sala d'espera. El volum de diferents alçades, mitjançant el joc de cobertes inclinades, se situa dins el solar creant un espai propi i més introvertit. El pati es el mecanisme que esmorteeix i filtra l'exterior cap a l'interior. Permet donar certa intimitat a les consultes però alhora soluciona la dura visió de les mitgeres, que en gran part quedaran ocultes pel nou edifici i la seva tanca. Des d'aquesta disposició el nou consultori es mostra atent al paisatge i un gran finestral cerca les millors vistes, cap al Montgrí, des de la sala d'espera. La disposició compacta i ordenada del volum dins el solar permet deixar gran part d'aquest lliure per a possibles futures ampliacions que es podrien encabir, dins el pati, amb gran facilitat de connexió.
